Reactie Stichting Behoud Dorpskarakter Eefde op bestemmingsplan Kokstraat
- Nieuws
- 14 februari 2026
- Mattijs Janssen
EEFDE - Onderstaande tekst is een ingezonden reactie van Stichting Behoud Dorpskarakter Eefde (SBDE) en betreft niet het standpunt van de redactie.
Namens Stichting Behoud Dorpskarakter Eefde (SBDE) - Sofie Greven (voorzitter) en Marise Haesendonckx (secretaris/penningmeester), tevens inwoners van de Kokstraat in Eefde - is een reactie gegeven op het eerder geplaatste artikel over het bestemmingsplan Kokstraat 37.
De wethouder beweert dat dit initiatief voldoet aan een goede ruimtelijke ordening. Daar zijn de omwonenden het niet mee eens. Volgens SBDE past het initiatief niet binnen het beleid van de gemeente en schort er ook wat betreft voldoen aan wet- en regelgeving het nodige.
Gemeentebeleid
Volgens de stichting voldoet het initiatief niet aan uitgangspunten als behoud dorpskarakter, groen, leefbaarheid en nabuurschap, die in de woonvisie, de basis voor het beleid, als heel belangrijk worden aangeduid. Ook wordt niet voldaan aan het principe van “bouwen naar behoefte” om verjongde en vitale kernen te krijgen.
Het kleinste huis in het plan had al een prijs van 309.000 euro (peildatum 2024) en de overige woningen lagen substantieel hoger. Inmiddels zijn de huizenprijzen verder gestegen en wordt verwacht dat dit zich richting 2026 zal doorzetten. “Er worden dus weer dure huizen gebouwd die wel verkocht gaan worden, maar niet aan de beoogde doelgroep, namelijk jongeren en ouderen uit Eefde en Lochem,” aldus SBDE.
Wet- en regelgeving
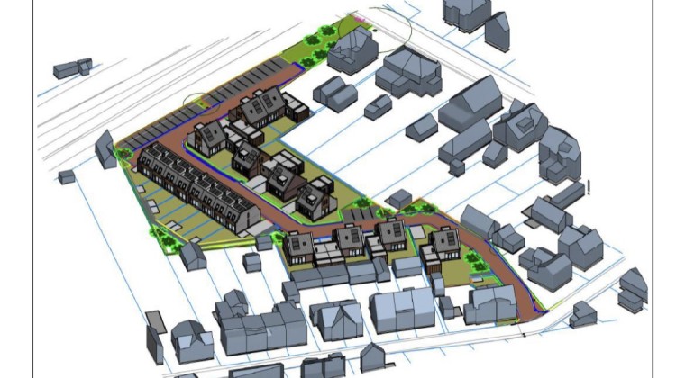
Wat betreft de aanvraag voor wijziging van het bestemmingsplan wijst de stichting erop dat deze eind december 2023 is ingediend onder de Wet ruimtelijke ordening. Die wet vraagt om een evenwichtige afweging van belangen. Dat houdt volgens SBDE in dat de wethouder zich niet alleen moet richten op de wensen van de initiatiefnemer, maar zich ook op de hoogte moet stellen van de impact op de buurt. Dat houdt participatie in. “Dat laatste is niet gebeurd. Bovendien kan de uitkomst bij participatie niet bij voorbaat vaststaan. Het plan met 18 huizen in een cul-de-sac van een halve hectare was niet bespreekbaar.”
Ook plaatst SBDE kanttekeningen bij het principebesluit waarnaar door de wethouder wordt verwezen. Het nemen van zo’n besluit betekent dat de wethouder wil meewerken aan het initiatief, maar de gemeente en belanghebbenden kunnen hieraan geen juridische consequenties verbinden. De raad is niet gebonden aan het principebesluit. In de bijbehorende intentieovereenkomst is bovendien geen termijn opgenomen. “Dat is normaal wel het geval en betekent nu dat de gemeente tot in de lengte der dagen heeft toegezegd mee te werken aan dit initiatief,” stelt de stichting. Gebruikelijk is dat na bijvoorbeeld een jaar opnieuw wordt gekeken of een initiatief nog haalbaar is gezien veranderde omstandigheden.
Verder wijst SBDE op de reactienota van de wethouder op de zienswijzen van omwonenden. Die had normaliter binnen twaalf weken na afloop van de inzagetermijn moeten verschijnen. “Een beetje uitstel is toegestaan, maar bijna twee jaar?” Volgens de stichting is die periode gebruikt voor een onderzoek naar de waterhuishouding, naar aanleiding van de zienswijzen van omwonenden. “Dat is niet de bedoeling. En sinds wanneer zijn omwonenden de experts die op zulke belangrijke tekortkomingen van een aanvraag bestemmingsplanwijziging moeten wijzen?”
Betrouwbare overheid
Ten slotte stelt SBDE vraagtekens bij het handelen van de gemeente als betrouwbare overheid. “Ten aanzien van de initiatiefnemer wordt steeds geschermd met het argument dat de gemeente niet onbetrouwbaar wil zijn, maar naar haar inwoners wordt dat niet zo gezien. Wij gingen er altijd vanuit dat de gemeente er ook voor de inwoners was.”
Voor de omwonenden wijst het bovenstaande volgens de stichting op ondeugdelijke besluitvorming en rechtsonzekerheid en -ongelijkheid, “kortom op onbehoorlijk bestuur en een onbetrouwbare overheid.”
